
The petition has been started, which calls for stronger protection of Garry oak ecosystems in the proposed 903 Admirals Road development in Esquimalt, highlighting significant ecological loss and insufficient replacement planning.
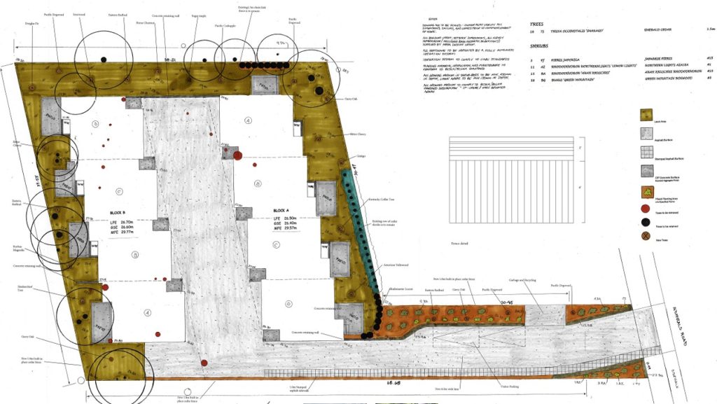
Squirrel for Mayor notes that according to the project’s Appendix C Landscape Plan, the site currently contains 54 trees (with 8 additional off-site trees potentially impacted), yet 33 trees—32 of them bylaw-protected—are slated for removal, including 24 native species and 18 Garry oaks out of 23 identified, with no Garry oak replacements proposed.
This represents a 61% loss of all on-site trees, 90% of protected trees, and a 78% reduction in native canopy, undermining critical ecological functions such as shading, cooling, rainwater interception, habitat continuity, and wind protection.
Although bylaws require 66 replacement trees, only 24 can be accommodated on-site, leaving 42 to be planted elsewhere or addressed through cash-in-lieu contributions, which may not benefit the immediate neighbourhood.
The proposed replacement planting plan is limited, specifying just 16 small ornamental cedars (Thuja occidentalis ‘Smaragd’) as the only clearly listed tree replacement, alongside predominantly non-native shrub species, raising concerns about long-term canopy viability given site constraints such as rock and limited soil depth for mature tree growth.
The Issue
Sign the petition
Summary
Support preserving as much of a rare patch of Garry oak and Douglas-fir ecosystem on an Esquimalt private property earmarked for development as possible, whilst still allowing appropriate development of the site.
The design in its current form does not achieve this and will result in 33 trees being taken down. Since its original submission in 2024 it has not changed in any significant way to address concerns raised by the Parks Department (see their report below) and the APC Design Review Committee (DRC), who recommended at both the Rezoning stage and now at the Development Permit (DP) stage to deny approval (see their DP motion below).
This petition will be presented to council when they meet (date TBD) to decide whether this DP application can be approved with its current design, or not.
The petition will show council that signatories:
- Care deeply about preserving our natural environment and want a fair balance between the conservation of these natural ecosystems and the need for building new homes.
- Are in agreement with Esquimalt’s DRC and Parks Department that both requested the design be changed to preserve as much of the existing woodland as possible in alignment with our Official Community Plan.
Balance can be achieved for this development, with a more thoughtful, creative design that:
- Fully recognizes the lot’s walkability, proximity to frequent transit, bike lanes and the E&N rail trail, all of which reduce car dependency and parking requirements.
- If necessary, utilizes the 11m allowable height available to its up-zoned CD category to reduce the building’s overall footprint.
Ask
We, the undersigned request that Council deny the current Development Permit for 903 Admirals Road and require a redesign that maximizes the preservation of the existing Garry oak and Douglas-fir ecosystem, in alignment with the DRC and Parks Department recommendations.
Ecologically sensitive landscape and 33 trees are important for the surrounding neighbourhood and the community, especially for physical and mental health, climate mitigation and adaptation, heat protection, stormwater management, and regional biodiversity and connectivity.
Heat dome 2021 and future heat dome likelihood: the science is clear. Mature, large canopy trees are vital to shading and cooling heat absorbing roads and buildings, and cooling the air at the neighbourhood level.
Flood risk: each mature, large canopy tree offsets the rainwater produced from the expanding impermeable built environment and reduces dependency on aging and overwhelmed storm drain systems
Biodiversity connectivity: excessive tree and shrub layer removal further depletes the diversity of structure that many species depend on.
Community character: Garry oaks are the character of our community. This character is no accident — they are remnants of thousands of years of lək̓ʷəŋən stewardship. Decision makers have a role as stewards to assign appropriate cultural values for existing Garry oaks.
Kids and grown ups need urban nature: Neighbourhoods with mature, large canopy trees connecting across private and public property are associated with better learning outcomes for children, and improved social cohesion with adults.
Tree replacement ratios do not equal canopy replacement: One mature, large canopy tree can be equivalent in volume to dozens of young replacement trees at the time of planting.
Tree replacement ratios do not assure trees’ survival: Esquimalt’s proactive involvement in assuring replacement trees are maintained comes to an end shortly after the completion of the development.
Less is more: Planting fewer trees with more appropriate soil volume, greater above ground space, and best practices in establishment care means healthier, longer lived trees, and increased site level canopy sooner.
Background
903 Admirals Road is an 18,700 sq ft lot that currently contains 54 trees. Garry oak ecosystems only exist in urbanized areas along the Salish Sea coast, not in the remote forests of Vancouver Island. They are part of the smallest, rarest, and most endangered biogeoclimatic zone in BC and unique in Canada.
In November of 2025 the developer had their rezoning request (RZ000120) approved by council to allow 8 units of housing to be built, up from the 4 allowable under its prior single-family designation. Based on the proposed design the allowable height was reduced from 11m to 9.5m to reduce impact on neighbouring properties.
The townhouse-based design is the basis of the current Development Permit application (DP000266) and results in the only area of land that is not built on or paved being a 4-5m wide strip on 3 sides of the property, and this is further impacted and reduced by 900 sq ft of patios.

The currently proposed new build will require the removal of 33 trees including 32 bylaw protected trees (90% of those on site), 18 of which are Garry Oaks and 5 are Douglas Fir.
Under Esquimalt’s tree protection bylaw this translates to 66 replacement trees being required.
More space is necessary for replacement trees
The provided landscape plan states that 24 replacement trees can be accommodated on site but this was disputed by the professional landscape representatives on the DRC, who criticized the plan as wholly inadequate. Significantly it doesn’t show existing and replacement trees to scale so in their professional opinion there isn’t enough space to support squeezing in these 24 trees.
Reductions are necessary to townhome sizes and car-centric design
The eight 1,400 sq ft townhomes are all 3-bedroom and each have a 2-car garage:
- The bylaw requirement is only 0.5 spaces.
- Admirals Road has 4 bus services and bike lanes.
- The E&N bike trail runs just south west of the property, accessible less than 300m away via Stancombe Place.
CFB Esquimalt, where targeted future owners may well work, is a short walk away. - For townhomes to work on this lot reductions have to be made to the footprints of the townhomes and/or the total number of units. Smaller units would also be more affordable to a wider range of occupants.
4 storey apartment would be a smaller footprint and more accessible to a range of ages and abilities
If the 11m allowable height was reinstated it would allow for a denser, smaller footprint building that could be located more centrally on the lot, preserving more trees and also not imposing on neighbours as much.
DRC motion
The DRC recommends denial, because the proposal doesn’t preserve the considerable environmental assets, including the high number of native plant and shrub species as well as numerous bylaw protected mature trees(DPA-1, 18.5.2.1 & DPA-8, 25.5.1.1 & 25.5.2.1), and recommends the proponent look at developing a new footprint to allow for greater preservation of natural features including existing trees, rock outcrops and native plantings where feasible, incorporating new landscaping material that builds on native plants and biodiversity, climate adapted species, habitat and restoration of Garry Oak ecosystems.
Enhance the amount of permeable areas to reduce stormwater inputs into municipal services and potentially allow for a reduction in irrigation required for landscaping (DPA-8, 25.5.1.6 & 25.5.2.2)
Parks Department report
Do not support the proposal for the following reasons:
- The removal of twenty-four (24) native trees, and nine (9) non-native trees are proposed.
- This would have a large impact on habitat and hydrology for the surrounding community.
- The loss of these trees would also pose new challenges to retained trees on and off this site as this grouping of trees has gone untouched for many years. Trees that are newly exposed (due to tree removal) to wind events are susceptible to structural failures. Past wind exposure of these remaining trees was protected by canopy support from surrounding trees.
- Additionally, there will be quite a bit of ‘blasting’ required and it is unclear how this may influence tree health, structure and hydrology at this site and neighboring properties.
- Recommend a redesign of this development that would support more tree retention.
DPA 1 Natural Environment
18.5.2 Natural Features Natural features and areas to be preserved, protected, restored, and enhanced where feasible:
1. Retain existing healthy native trees, vegetation, rock outcrops and soil wherever possible.
18.5.3 Biodiversity Landscaping features that will protect, restore and enhance biodiversity. Where feasible:
1. New landscaping shall consist predominantly of native plant and tree species. Plants that are native to the Coastal Douglas-fir bio geoclimatic zone are preferred in landscape treatments as they provide habitat for threatened indigenous flora and fauna. Drought tolerant plants native to western North America, that are known to be non-invasive, are a good alternative choice for landscaped areas.
18.5.5 Drainage and Erosion
1. Maximize the ratio of planted and pervious surfaces to unplanted surfaces, and design paved areas to direct water towards vegetated areas, to help reduce surface run off. Where paved surfaces are needed, intersperse with drought resistant vegetation and trees, to help absorb stormwater, provide shade and reduce the local heat island effect.
2. Use porous surfaces to enhance stormwater infiltration, permeable paving is preferable for all open air parking areas. Ensure installation methods contribute to sustained permeability and retention of stormwater on the site.
DPA 8 Water Conservation Form Submission
25.5.1 Building and Landscape Design Where it is feasible:
1. Provide space for absorbent landscaping, including significantly sized trees on the site. Design underground parking structures to allow space for significantly sized trees.
6. Design landscaping with more planted and pervious surfaces than solid surfaces. Direct stormwater towards rain gardens/bioswales.
25.5.2 Landscaping – Retaining Stormwater on Site (absorbent landscaping) Where it is feasible:
1. Preserve and restore treed areas.
2. Use pervious landscaping materials to enhance stormwater infiltration; permeable paving is preferable for surface parking areas.
Petition starter Graham Tarling at Change.org
